陶瓷原料立磨:實現陶瓷粉料的自動化生產設備

陶瓷原料立磨
陶瓷行業一直渴望早日實現生產自動化、智能化,但是在我國絕大部分陶瓷生產車間,依然需要大量的人工來確保生產線的正常運作,這是陶瓷行業的殘酷現實。我國陶瓷業自動化進程緩慢的一大因素是原材料的不穩定,國外將自動化做到極致的陶瓷廠,可以實現即使無人在工廠,也能保證生產的持續穩定,其中的一個重要支撐因素就是其原材料穩定,原材料穩定的前提就是生產環境的穩定性,包括工藝參數、設備型號、人員操作等等。而自動化生產便可以保證這些穩定因素。在此形式下,一種用于陶瓷原料粉磨的立磨設備應運而生。在水泥行業與陶瓷行業中,物料的破碎與粉磨是其能耗高的主要方面。在水泥行業,立磨的使用率已經從2000年的1/3提升到2014年的90%;在陶瓷行業,立式磨與球磨機的聯合系統也投入使用,并且節能效果明顯,立式磨在陶瓷行業的應用前景十分樂觀,使用率必會迅速增長。桂林鴻程是陶瓷原料立磨生產廠家,我們生產的陶瓷原料立磨為實現陶瓷粉料的自動化生產提供了良好的設備助力。今天就為大家介紹一下陶瓷原料立磨的優勢。

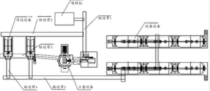
陶瓷粉料的自動化生產工藝流程
陶瓷原料立磨與球磨機聯合系統的思路是:物料從大到小,不同顆粒大小的物料采用不同的粉磨設備進行粉磨。這樣的組合,可以大大提高粉磨效率。立磨與球磨機在陶瓷原料粉磨中的聯合應用,是針對當前陶企普遍使用的陶瓷原料(砂石料和泥料)用“傳統單一球磨”的加工工藝進行的一種陶瓷原料加工工藝的創新。其工藝流程是:先將砂石料經立磨進行粗粉磨處理后,再送入球磨機進行研磨。采用二段粉磨流程,避免大的物料在球磨機初始粉碎階段的大能量消耗,極大地縮短了物料的整個球磨過程時間,大大降低了球磨機的能耗,從而達到了在原料制備階段的節能。立磨+連續磨以后,可以解決原料車間主要靠人工,自動化水平不高的現狀,很容易實現原料車間自動化的粉碎情況。具體來說,自動化生產有以下價值:
1.品質穩定性和一致性:陶瓷產品需要保持品質極高的穩定性和一致性,自動化系統可優化工藝控制參數、實時監控生產過程、實時監控品質分析數據,最終達到產品批次品質的高度穩定性和一致性。
2.質量可追溯性:可以長期保存生產過程數據,當出現質量問題時可實現快速查詢,這些要求需要通過自動化和信息化的手段予以實現。
3.降本增效,提升管理水平:陶瓷粉體材料自動化生產完全遵循質量體系要求,提升產品品質的穩定性和一致性,強化核心競爭力,保持企業可持續發展。
在陶瓷粉料生產中,自動化系統監控生產比人工可靠、準確而永不疲勞,還可做到以數服人、以數說事,從數據中也可診斷出更多的問題。